Vivienda Unifamiliar entre medianeras en Torrealquería en Alhaurín de la Torre

Alzado Propuesto por Arquisurlauro


Estado de las obras.

Para descarga del Proyecto de Rehabilitación y ampliación de Vivienda Unifamiliar en calle Los Potrillos

Para descargar el proyecto pinche aqui. El proyecto esta comprimido con el programa WINRAR. Para obtener las claves de descompresión pongase en contacto con Arquisurlauro s.l.p. Muchas gracias por su colaboración. Sólo se facilitarán las claves de descompresión a profesionales autorizados por los promotores en cumplimiento de la ley de protección de datos.

Vivienda Unifamiliar entre medianeras



Vivienda Unifamiliar aislada en Paraje de Menaya

Alzado propuesto por Arquisurlauro.
Se trata de una vivienda de programa mínimo en el que se buscaba una superficie construida moderada que resolviera todo el programa funcional requerido.

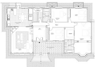
Planta de la vivienda mínima

En todo momento se buscó en el diseño la sencillez y la economía de medios.

Fotos de la vivienda ejecutada

Vivienda Unifamiliar aislada para dos Hermanas.


El programa funcional y de diseño de la vivienda responde a la necesidad de dos hermanas de compartir su vivienda. De ahí la simetría del diseño.

Vivienda Unifamiliar aislada

Vivienda Unifamiliar entre medianeras

Alzado a la calle y al patio posterior

Sección longitudinal de la vivienda

Vivienda Unifamiliar entre medianeras con planta baja destinada a trastero garaje.

Se trata de una vivienda entre medianeras que da a dos calles en situación de esquina con la planta baja aprovechada para uso garaje y trastero y la vivienda se desarrolla en planta primera y ático.

Para descarga del Proyecto de Vivienda Unifamiliar aislada y piscina de Juan López en Pinos de Alhaurín

Para descargar el proyecto pinche aqui. El proyecto se encuentra comprimido con WINRAR, Si no dispone del programa de descompresión lo puede obtener aqui. Para obtener las claves de descompresión pongase en contacto con Arquisurlauro. Gracias por su colaboración. Sólo se facilitarán las claves de descompresión a profesionales autorizados por los promotores en cumplimiento de la ley de protección de datos.

Para descarga del Proyecto de Vivienda Unifamiliar aislada y piscina de Juan López en Pinos de Alhaurín

Procedimiento para la construcción de su Vivienda.

A continuación pretendemos explicar a nuestros clientes actuales o futuros el procedimiento en España para la construcción de una vivienda y una serie de consejos prácticos que pueden ser de su interés.

Cuando el cliente acude a nosotros normalmente ya es propietario de un terreno o parcela para la construcción de su futura vivienda.

Desde aquí, animamos a quién tenga en mente comprarse una parcela para la construcción de su vivienda que, incluso antes de comprarla, se ponga en contacto con nosotros; porque desde nuestro estudio se le asesorará sobre las condiciones urbanísticas de la parcela, indicándole los parámetros urbanísticos de la misma.

Estos parámetros son fundamentales para saber si la parcela que se pretende adquirir se adecua a las necesidades del cliente. Además se le evitarán sorpresas desagradables, como descubrir que la parcela que adquirió está afectada por una alineación, con la consiguiente expropiación, o por una zona de policía con lo cual solo puede construir en parte de la misma, o que le dijeron que podía construir muchos más metros de lo que realmente puede, o incluso descubrir tras la compra que la parcela es de suelo rústico no urbano y que no puede construir.


Cuando una parcela es urbana y tiene por tanto una calificación, según sea esta, la parcela tiene una edificabilidad, una ocupación e incluso una tipología edificatoria designada. O sea, que lo que se puede construir es una vivienda entre medianeras o aislada, una vivienda que forzosamente tiene que estar alineada a vial, etc. y esta prefijado los metros cuadrados que se pueden construir y los metros cuadrados de solar que se puede ocupar con la Edificación.
Parámetros que como se puede ver son importantes conocer y constatar antes de la adquisición de la vivienda.

Otro tema importante de conocer previamente a la adquisición de la parcela es la "geología" de la misma, o lo que es lo mismo el
tipo de terreno del que se compone la parcela, pues hay terrenos que provienen de rellenos artificiales o compuestos por arcillas expansivas que conllevan o cimentaciones especiales o la "obligatoriedad " de ejecutar un sótano que no entraba en los cálculos económicos del cliente, ni en sus necesidades funcionales.

Nuestra experiencia de más de diez años trabajando en toda la provincia de Málaga y especialmente en el Valle del Guadalhorce nos hace conocer de antemano lo que se puede esperar en determinadas zonas y asesorar al cliente en este sentido antes de la elección definitiva de la parcela idónea para sus intereses.


Supongamos que ya tenemos la parcela adquirida y es la que se adapta a los intereses constructivos y funcionales del cliente:


Lo primero que se tiene que realizar para poder construir la vivienda es un Proyecto Básico y de Ejecución de la misma. Este proyecto debidamente visado por el Colegio Oficial de Arquitectos de la Provincia de Málaga. Sólo puede estar redactado y firmado por un
Arquitecto superior. Único profesional, según recoge la Ley Orgánica de la Edificación con atribuciones profesionales para la redacción del mismo.

Este proyecto básico y de ejecución tal como indica su nombre se compone de dos partes que se pueden redactar de forma conjunta o de forma separada.


El
proyecto básico reúne el conjunto de plantas, secciones y alzados de la vivienda con su distribución, cotas y superficies y contiene en su memoria el cumplimiento de la normativa urbanística de aplicación y de algunas partes del Código Técnico de la Edificación. Conjuntamente con el Proyecto Básico hay que entregar para su visado el Estudio Geotécnico de la parcela en la que se asentará la vivienda.

Arquisurlauro gestiona gratuitamente a sus clientes la solicitud de presupuestos de este estudio solicitándolo directamente a las empresas homologadas más competitivas del Mercado, aportándole a nuestro cliente los diferentes presupuestos para su elección y facilitando a las empresas los datos técnicos necesarios que les facilite la emisión de sus presupuestos.


El
proyecto de Ejecución reúne toda la documentación técnica necesaria para la realización en obra de la vivienda: planos de albañilería, carpintería, instalaciones, estructura, etc. y su correspondiente medición, documento necesario para poder obtener un presupuesto de un constructor. Anexo al Proyecto de Ejecución irá el Estudio Básico de Seguridad y Salud en el que se recogerán las medidas necesarias para trabajar con seguridad durante la obra.

Además se tiene que contratar a un
Coordinador de las labores de Seguridad y salud durante el transcurso de las obras que redacte a su vez un estudio de sobre las medidas de seguridad y salud que se han de tomar durante la ejecución de las mencionadas obras.
Nosotros ofrecemos este servicio a nuestros clientes y conforme redactamos el proyecto, redactamos al mismo tiempo este Estudio de Seguridad y salud.

Con sólo el
proyecto básico redactado por el Arquitecto Superior, junto con el certificado de intervención del Arquitecto técnico o aparejador emitido por su colegio profesional en el que se recoge que el propietario ha contratado a este profesional junto a los arquitectos superiores para llevar la dirección de la Ejecución de la vivienda se puede solicitar la obtención de licencia en el Ayuntamiento.

Esta licencia que se obtiene está
condicionada a la posterior entrega en el Ayuntamiento del Proyecto de Ejecución junto con el certificado de intervención de los arquitectos superiores, momento en el que se concede por el Ayuntamiento la licencia definitiva de obra y se podrían empezar los trabajos.

Recientemente, en casi todo Alhaurín de la Torre, menos una pequeña franja de Pinos de Alhaurin es preceptivo solicitar para la obtención de la licencia municipal un
informe de servidumbres aeroportuarias al Ministerio de Fomento, por la cercanía de este municipio con el Aeropuerto de Málaga. Por ello es ahora conveniente separar el Proyecto Básico del de Ejecución para que se vaya adelantando cuando antes la obtención de este trámite administrativo que ha retrasado considerablemente el acto de obtención de licencia que anteriormente no se dilataba más de un mes.

Un documento importantísimo del
Proyecto de Ejecución son las mediciones y presupuesto del mismo, pues junto con los planos es el documento vinculante en la contratación del constructor.

Es por ello importantísimo que el constructor presupueste las mediciones de proyecto y no otras, pues en ellas están incluidas en los epígrafes no solo la cantidad de elementos de obra que tiene que construir, sino en la mayoría de las veces cómo las tiene que construir, cómo las tiene que medir y cómo las tiene que presupuestar. El mayor ajuste del presupuesto del constructor a estas mediciones de proyecto evita en el futuro discrepancias y conflictos en obra.


Además que los diferentes constructores que presupuestan el proyecto se ajusten a las mediciones de proyecto consigue que nuestro cliente pueda realizar una comparativa real entre las diferentes ofertas que obtenga para la realización de la obra y que esta se va a ejecutar según el criterio de los técnicos especialistas contratados para ello y no según el entender de cada constructor que presupuesta.


Para facilitar el trámite de la solicitud de presupuestos a nuestros clientes y a su vez, para facilitarles a los constructores la consulta a sus subcontratas desde nuestro estudio ofrecemos a nuestros clientes el servicio de subida de sus proyectos a nuestro
servidor web. Cada proyecto una vez terminado y visado se sube comprimido y encriptado con una clave personal de descompresión de forma que nuestro cliente no tiene que gastarse dinero en engorrosas copias de papel sino que simplemente se limita a facilitar a los constructores que quiere que le presupuesten el proyecto la dirección de nuestra página web donde puede descargarse su proyecto y la clave personal de descompresión. Los constructores se descargan desde este sitio web el proyecto y se ponen en contacto directo con nosotros para cualquier duda constructiva que tengan en la elaboración de su presupuesto. Además contribuimos a evitar el gasto de papel innecesario con las ventajas ecológicas que conlleva.

Los clientes nos muestran sus diferentes presupuestos y con nuestro asesoramiento se deciden por un constructor con el que firman un contrato para la construcción de su vivienda.


Este contrato, es también un documento importantísimo porque en él han de quedar reflejadas una serie de circunstancias que se pueden dar en obra y que se han de prever y darles solución desde el contrato. Desde nuestro estudio con nuestra experiencia ofrecemos a nuestros clientes un modelo de contrato con el que se intenta dar respuesta a estas circunstancias y que por justo obliga tanto al promotor como al constructor a asumir sus obligaciones y responsabilidades y que puede quitar muchos quebraderos de cabeza a nuestros clientes.


El constructor finalmente designado y con el contrato firmado antes de comenzar las obras ha de recibir una copia visada del Proyecto Básico y de Ejecución en papel, documento que ha de quedar depositado en obra, copia visada del Estudio de Seguridad y salud, para tras realizar su estudio aportarnos el Plan de Seguridad de las Obras que consiste en la adaptación a sus medios de obra del Estudio de seguridad y salud.


Con este plan, nosotros como coordinadores tras su aceptación o sus correcciones si fuera necesario emitimos un Acta de Aceptación del Plan y con toda esta documentación el Promotor ha de realizar la Apertura del Centro de Trabajo de la Obra. Pudiéndose entonces comenzar con las mismas.


Durante las Obras es necesario y obligatorio contratar una dirección colegiada formada por un Arquitecto Superior que será el encargado de llevar la Dirección de Obra y un Arquitecto técnico que será el encargado de llevar la Dirección de Ejecución. Son dos direcciones distintas, de dos profesionales distintos y con distintas responsabilidades que se complementan en el transcurso de las obras.


En las mediciones de proyecto viene reflejado el plan de control necesario que el Constructor ha de contratar con diferentes laboratorios homologados para el control de diferentes partidas que necesitan ensayarse en obras: hormigón, aceros para armaduras, compactaciones, etc.


Sólo los
Arquitectos superiores y los arquitectos técnicos tienen las facultades en España para llevar conjuntamente esta dirección colegiada obligatoria en la construcción de viviendas. Ni ingenieros superiores o técnicos tienen facultades profesionales para llevar esta labor a cabo.

Se realizarán las visitas necesarias para el correcto control de obra por parte del Arquitecto superior y por parte del Arquitecto técnico realizando los controles y pruebas necesarias y al final de obras se emite por los dos profesionales un
Certificado Conjunto que se visa en los dos colegios profesionales y con el que el cliente puede solicitar la primera ocupación de su vivienda.

Una vez girada visita por el técnico municipal para dar el visto bueno a esta primera ocupación el cliente puede habitar su vivienda, formalizando con los boletines de los instaladores y con esta licencia de primera ocupación los contratos de suministros de Agua y Luz con las diferentes compañías suministradoras.


Y a disfrutar de su nueva vivienda...